The balance of preserving a charming Shetland cottage while doubling its floor area for modern living

2016
Private House Extension
Awaiting construction
Private Client
Tumblin, Shetland
Not yet selected
Richard Gibson Architects

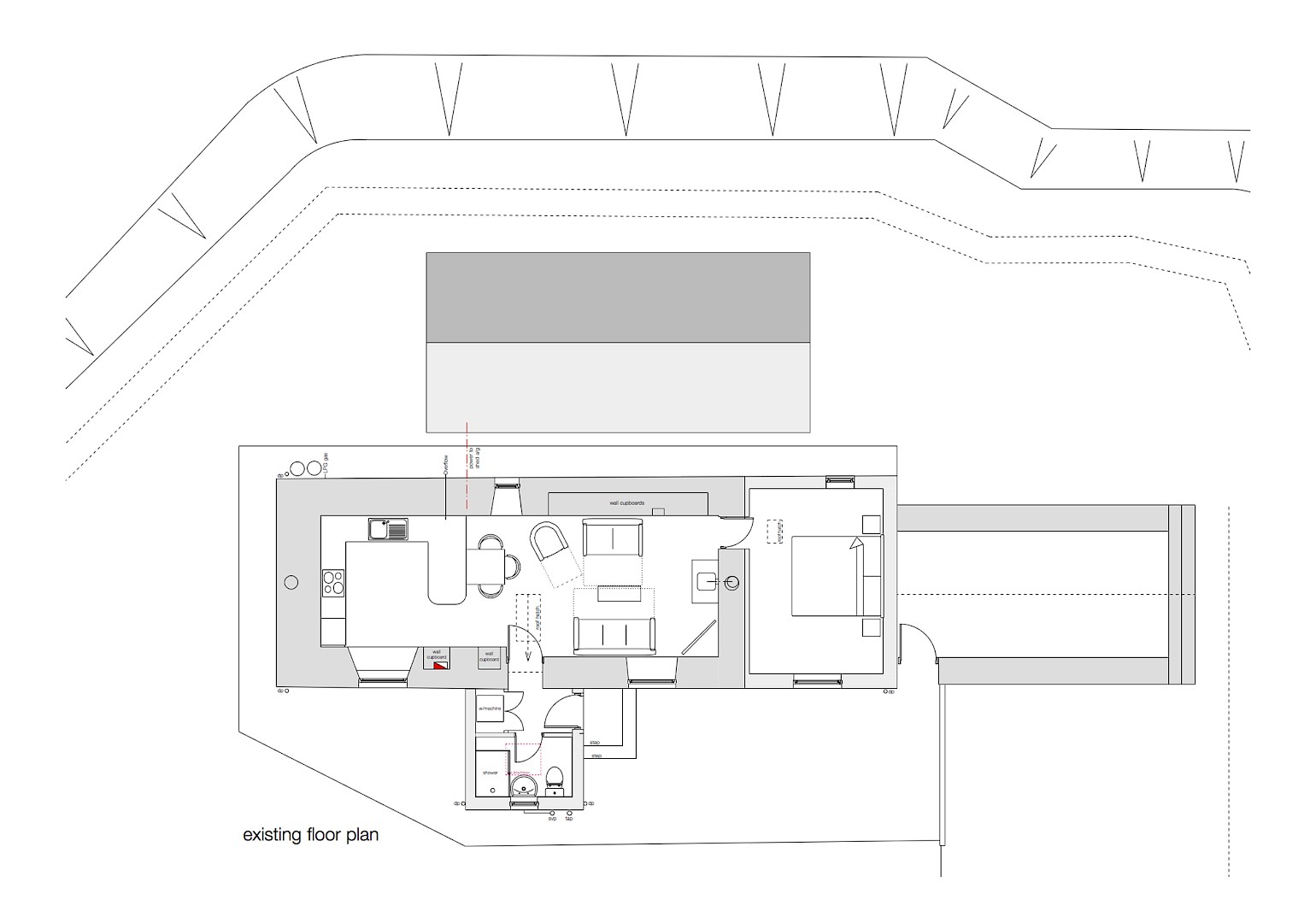
Having considered building a new house, our client decided to stay in their cottage because of its location within their working croft. We were asked to significantly enlarge the cottage to provide much needed floor space for modern living. The 48 square meter cottage had only an open living, dining and kitchen area, one bedroom and toilet.

After completing internal renovations, the client wished to retain as much of the old cottage as possible, but were still open to their work being remodeled if it meant a better overall result. By considering the bigger picture, it helps us to provide the best solution and value for your money.

As the required floor space was almost double that of the cottage, we carefully designed the extension to respect the size and appearance of the cottage. By placing the extension neatly to the rear, its size is less apparent and becomes a complimentary backdrop to the cottage.

Internally, we have provided all of the client's required space, carefully integrated and making use of existing openings to ensure the new house works as a whole. Poorly designed extensions can result in older parts of a building becoming unnecessarily redundant.
The new double height living room is off the enlarged dining room. Corner glazing captures evening sun and views along the Tumblin road. Tthe old bedroom has become a larger, beter sheltered entrance and utility room.
Previous subscribers note you will need to re-subscribe to continue to receive our occasional mail shoots.