Featured by the Scottish Government's 'Inspirational Designs' agenda as an exemplar design for large rural housing developments. Grodians has also featured in separate exhibitions in Venice and Paris amongst various other architectural publications and awards.

2009 - 2011
New Build Social Housing
Complete
Hjaltland Housing Association
Lerwick, Shetland
15600 m²
£ 4.5 M
E&H Building Contractors Ltd
Richard Gibson Architects, Phatsheep Photography
2012: Saltire Housing Design Awards - Large Scale Housing Development - Commendation
2012: I.A.A Awards - Placemaking - Winner
2012: Civic Trust Awards - Regional Finalist
2012: RIAS Awards - New Buildings - Winner
2011: Andrew Doolan Award - All projects - Finalist with Special Mention
"Richard Gibson Architects have designed houses for the Association for more than 35 years. In that time they have provided a varied range of housing schemes which have been designed to fit into their surroundings and enhance the local environment. They have worked on some of the Association’s most prominent and successful developments, being nominated and winning a number of design awards for their work. They continue to bring new ideas, technologies and design principles to each project. We have enjoyed working with them in the past and look forward to many more successful future projects."
/ Paul Leask
Property Manager, Hjaltland Housing Association

Grodians was one of twelve projects featured in the Scottish Exhibition for the 2016 Venice Biennale, and in a European housing exhibition at Cité de l’ architecture et du patrimoine of Paris. The Scottish Government has also listed Grodians as one of their 'exemplar' large scale projects in their Inspirational Design category.

“A layout prioritising pedestrians combined with a range of thoughtful, energy efficient house types has created a somewhat picturesque composition of buildings responding to context. The use of colour contributes much to their identity adding a note of brightness to the landscape. There is something new here, but also familiar which sits comfortably within its rugged Shetland environment.”
/ The Saltire Society, Architectural citation


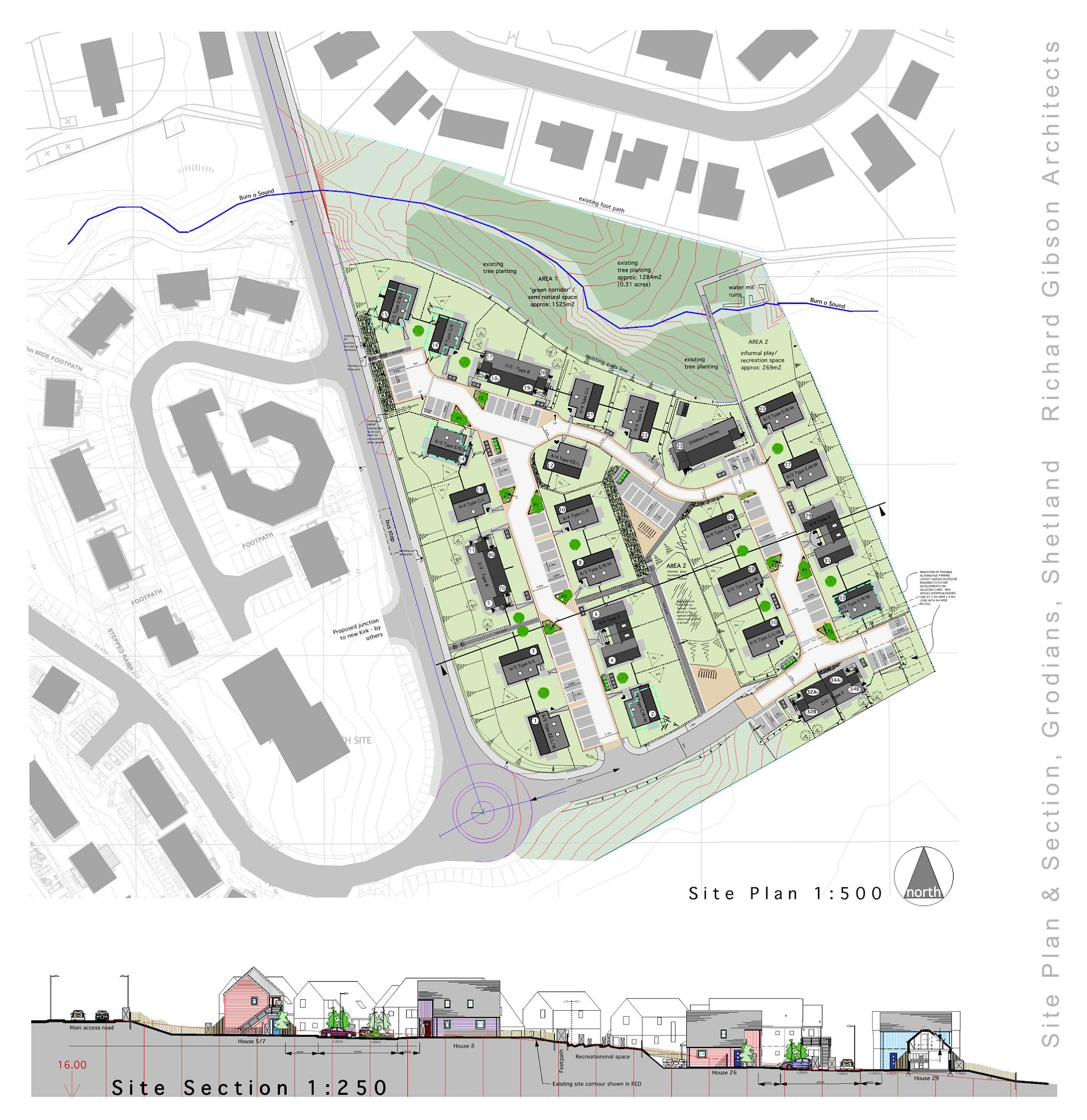
Houses are orientated closely to help provide shelter and encourage social interaction. Each living space overlooks both their entrance and private garden. The communal green spaces have burnside and sea views.

This scheme is the first in Shetland to adopt 'Home Zone' street design where vehicles sharing the pedestrian realm are subject to restriction and landscaped features that encourage caution. This approach influences the informal quality of the scheme and creates a more characterful place.

Previous subscribers note you will need to re-subscribe to continue to receive our occasional mail shoots.